Unikt restaurantlejemål i hjertet af Kgs. Lyngby
Vi søger den helt rette lejer til dette enestående lejemål med en sjælden beliggenhed midt i Kgs. Lyngby Centrum. Ejendommen huser i dag Meyers og ligger i et attraktivt smørhul mellem Lyngby Hovedgade, Magasin og biografen – omgivet af stærke naboer og populære kæder som bl.a. Sticks & Sushi. Området er præget af høj synlighed, masser af liv og særdeles gode gæsteparkeringsmuligheder.
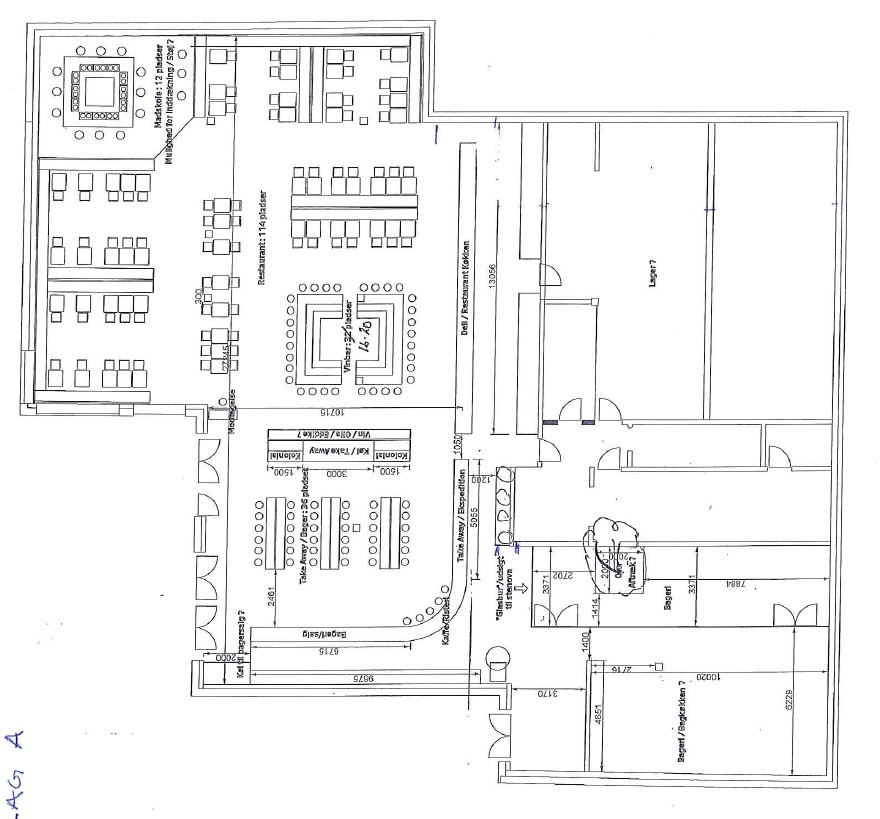
Lejemålet byder på et imponerende og fleksibelt serveringsareal med plads til ca. 200–300 gæster. De rå rammer har oprindeligt haft et fabriksagtigt udtryk, men er i dag opdelt med gennemtænkte skillevægsløsninger, der skaber en charmerende, intim og stemningsfuld atmosfære med mulighed for flere zoner og oplevelser i samme lokale.
Ved indgangen mødes gæsterne af en stor og markant bar med rigelig arbejdsplads og et naturligt overblik over indgangspartiet og restaurantens puls – ideelt til både restaurant- og bardrift.
Bagtil findes et yderst veludstyret og professionelt produktionskøkken i stor skala. Køkkenet rummer bl.a. en markant pizzaovn placeret centralt i lokalet, flere produktionssektioner med både koldt og varmt køkken, store køle- og frysefaciliteter samt generøse opbevarings- og lagerarealer. Her er kapacitet og faciliteter til at servicere både restauranten og evt. ekstern produktion eller catering i hele Nordsjælland.
Lejemålet rummer desuden spændende alternative anvendelsesmuligheder – eksempelvis etablering af et indendørs street food-marked, hvor flere selvstændige enheder og koncepter nemt kan indpasses i de eksisterende rammer.
En sjælden mulighed for at overtage et stort, markant og yderst fleksibelt restaurantlejemål i et af Nordsjællands mest attraktive handels- og bylivsområder.
Adresse, telefon og mail
1711 Copenhagen V, Denmark
Telefon: 51 51 47 28 & 22 15 04 58
Mail: camilla@kornerup-bang.com






































